Available

St Johns Close, Mount Hawke

£475,000
4 Beds
2 Baths
1313 sqft

Key Features

  • 4 bedroom detached Net Zero home
  • Sought-after Mount Hawke village location
  • Porthtowan Beach and St Agnes nearby
  • Solar panels and Eco-friendly air source heat pumps
  • Triple-glazed windows throughout
  • Shaker kitchens with Quartz worktops
  • Luxury bathrooms and en-suites
  • Driveway parking for at least two cars with an integrated garage
  • Underfloor heating to ground floor
  • 10 - Year new build warranty

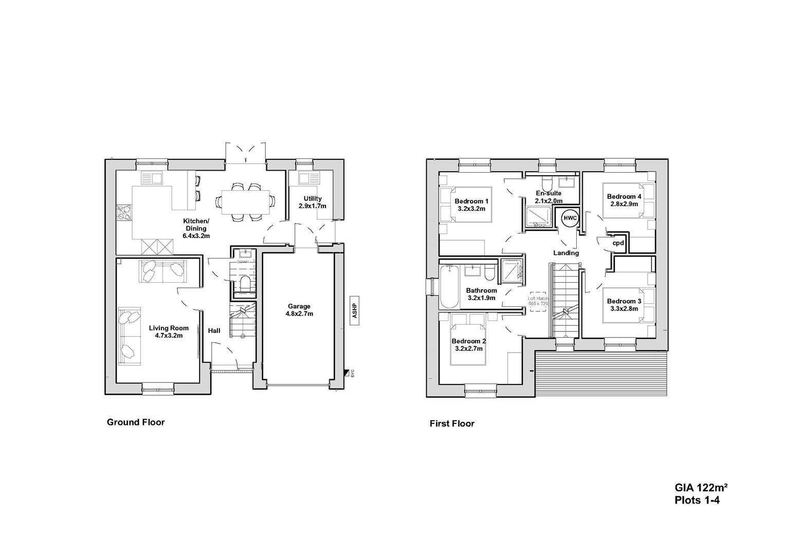
Plot 3 - This impressive four-bedroom detached home showcases the perfect blend of modern comfort, timeless style, and sustainability. Designed to be Net Carbon Zero, it features solar panels, an air source heat pump, underfloor heating to the ground floor, and triple-glazed windows for outstanding energy performance. The heart of the home is a luxurious shaker kitchen with Quartz worktops and integrated appliances, flowing into generous open-plan living and dining spaces with French doors opening onto the garden. Upstairs, four beautifully proportioned bedrooms include a luxurious principal suite with an en-suite bathroom, complemented by high-quality finishes and contemporary fittings throughout. Outside, there is private driveway parking for at least two cars, landscaped front gardens, and a spacious rear garden with patio and lawn. A home of quality, efficiency, and character designed for modern family life in a stunning Cornish coastal location.

The Development - Set in the sought-after Cornish village of Mount Hawke, just moments from the beaches of Porthtowan and St Agnes, this exclusive collection of three and four-bedroom luxury homes blends traditional Cornish character with contemporary, sustainable design. Each property is built to net-zero standards, featuring solar panels, air source heat pumps, and triple-glazed windows for exceptional energy efficiency and year-round comfort. With underfloor heating, EV charging points, and full-fibre broadband, these homes offer the perfect balance of coastal charm and modern living.

Every detail has been designed with quality in mind - from bespoke shaker kitchens with Quartz worktops and oak internal doors, to luxury flooring and spa-style bathrooms. Externally, each home enjoys landscaped front gardens, private driveways for at least two cars, and spacious rear gardens laid to patio and lawn. Combining elegant design, thoughtful landscaping, and sustainable technology, this development offers a rare opportunity to own a brand-new, energy-efficient home in one of Cornwall’s most desirable coastal locations.

Location - Beautifully positioned near Porthtowan Beach and St Agnes, Mount Hawke is a charming north Cornwall village offering a welcoming community, excellent local amenities, and easy access to Truro and the stunning coastal landscape. Ideal for those seeking a relaxed yet connected Cornish lifestyle.

Specification - Download the brochure for the full specification

Estate Fee - Estimated £350 per annum

Agents Note - CGIs/Specs/Measurements/Plans are approximate and subject to change without notice.
Some images have been used from a previous project and bathroom layout will vary.

agent

Zac Davy-Taylor

Senior New Homes Negotiator

Council Tax: TBC

Floorplan & EPC

Location

Enquire about this property