Let Agreed

Rock Pipit Road, Trevemper, Newquay

Cornwall > Newquay > Hedhas Dowr, Trevemper
£1,225 PCM
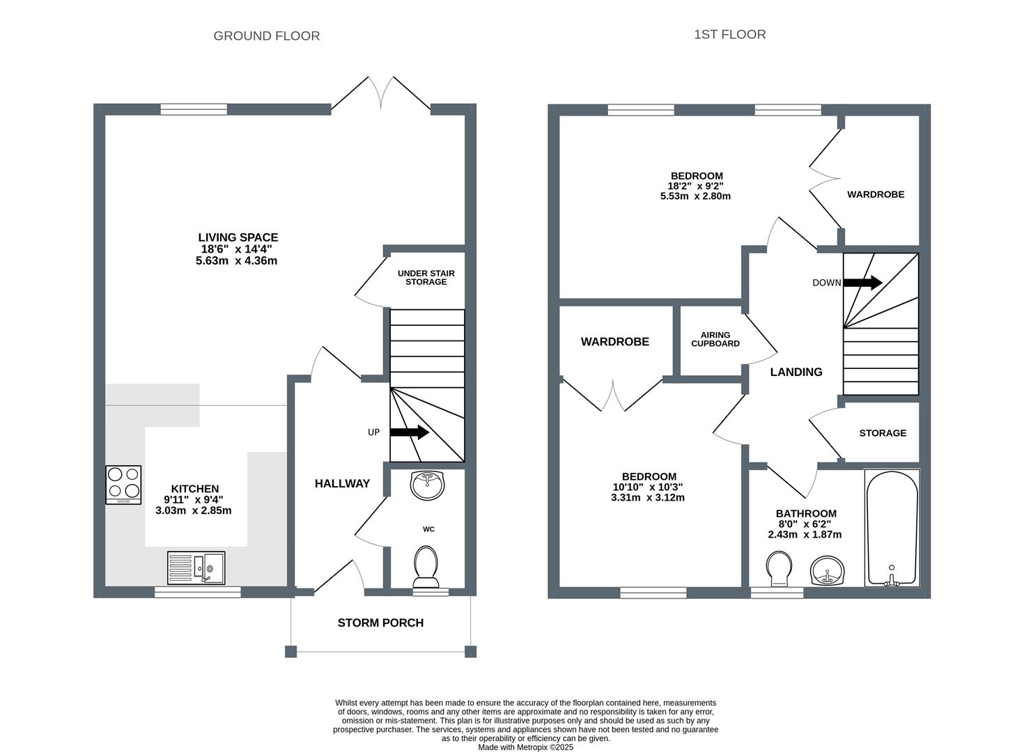
2 Beds
1 Baths
878 sqft

Key Features

  • Brand New Two Bedroom Home
  • Enclosed Rear Garden
  • Allocated Parking for 2 Cars
  • PV Solar Panels
  • Eco-Friendly Air Source Heat Pump
  • EV Charger
  • Underfloor Heating to Ground Floor
  • Pets Considered

A brand new, mid terrace two bedroom family home in the Trevemper area of Newquay. An open plan living space leading out into the garden, two double bedrooms with built in wardrobes, a family bathroom and a downstairs WC. Air source heat pump powered underfloor heating to the ground floor with central heating on the first. Electric car charging port.

Pets considered.

You will need to fill out a David Ball Agencies Treveth regsitration form before proceeding which includes eligibility for this property as there is a required location connection to Newquay and the surrounding areas, for full details please contact us or visit the Treveth area of the David Ball Agencies website.

Floor plan dimensions provided have used architects' drawings and are for guidance only, therefore actual measurements may vary slightly. Images used are of the same house type and are for illustrative purposes, individual properties may vary slightly.

RENT £1,225 DEPOSIT £1,413 HOLDING DEPOSIT £282

agent

Daniel Ball

Director
agent

Jane Hill

Residential Lettings Assistant Manager

Council Tax: TBC

Floorplan & EPC

Location

Enquire about this property